| ingatlan típusa: | Lakás |
| helyszín: | Budapest XXIII.került |
| emelet: | 2. emelet |
| szobák: | 2 szoba |
| átadás éve: | 2023.07.31 |
| alap terület: | 30.46 m² |
| erkély mérete: | 0.73 m² |
| valós terület: | 30.83 m² |
| fűtés típusa: | Hősszivattyú |
| CSOK-ra alkalmas-e: | nem |
| ingatlan típusa: | Lakás |
| helyszín: | Budapest XXIII.került |
| emelet: | 2. emelet |
| szobák: | 2 szoba |
| átadás éve: | 2023.07.31 |
| alap terület: | 30.46 m² |
| erkély mérete: | 0.73 m² |
| valós terület: | 30.83 m² |
| fűtés típusa: | Hősszivattyú |
| CSOK-ra alkalmas-e: | nem |
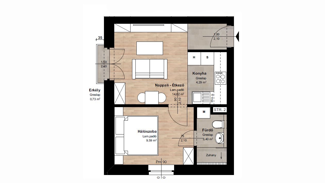
Budapesten, a 23. kerületben Soroksár kertvárosában eladásra kínálunk a 24 lakásos társasház első emeletén, egy 30 nm-es nappali+ 1 hálószobás lakást kis terasszal.
In Budapest, in the 23rd district, in the city of Soroksár, we offer for sale a 30 sqm living room + 1 bedroom apartment with a small terrace on the first floor of a 24-apartment apartment building.
Az apartmanpark kiemelkedő elhelyezkedése miatt nagyon népszerű lehet azok körében, akik Budapest főbb pontjainak könnyű elérhetőségét keresik, miközben a zöld környezet adja az otthon nyugalmát. Az M5-ös autópálya közeli elhelyezkedése és a tágas zöld környezet egyedülálló környezetet nyújt az itt lakóknak.
A tervezett 10 lakásvariáns biztosítja a piaci igényeknek megfelelő kínálatot, és a széleskörű állami támogatások is hozzájárulnak ahhoz, hogy az épületek megfizethetőek legyenek. Az első ütem A-B-C épületének 72 lakóegysége (24 db/épület) lehetővé teszi, hogy a leendő lakók, választhassanak az elérhető lehetőségek közül.
A projekt filozófiája szerint a fenntarthatóság fontos szerepet játszik. Az épületek hűtése és fűtése megújuló energiával történik, amelyet a hőszivattyú segítségével biztosítanak. Az épületek lifttel rendelkeznek.
Az első ütem tervezett műszaki átadása 2023. július 31.