Menü

Közel 63 nm-es, Ny-i tájolású lakás eladó az Ezüstparton

Ár: ELADVA
Referencia szám: LS002385
ingatlan típusa: Lakás
helyszín: Balaton
emelet: 1. emelet
szobák: 1 + 2 szoba
átadás éve: 2023.06.30
alap terület: 62.94 m²
erkély mérete: 12.72 m²
valós terület: 69.30 m²
fűtés típusa: Központi hőszivattyús hűtő-fűtő rendszer
CSOK-ra alkalmas-e: igen
Új építésű ingatlan leírás

Új lendület az Ezüstparton!

2021-ben a Liszt Ferenc sétányon évek óta tartó rehabilitációs folyamat keretében kezdetét veszi egy új, 100 lakásos lakóépület fejlesztése. A már megszokott koncepcióhoz modern kivitelezés társul – az épület merőleges a Balatonra, így biztosítva kilátást minden lakásból.

A társasházban található lakástípusok minden igénynek megfelelő kialakítással bírnak. A földszinten kertkapcsolatos, az 5. emeleti zárószinten pedig nagy teraszos penthouse lakások várják tulajdonosaikat. Szintenként minden lakástípus fellelhető: A kis lakások kedvelői számára a nappali+1 hálós kialakítás lehet ideális, de ugyanígy lesz nagyobb, akár két, három hálószobás családbarát változat is. Fontos kihangsúlyozni, hogy a kényelem és funkcionalitás egyaránt fontos maradt, ugyanis minden lakás rendelkezik egy Balaton irányába tájolt erkéllyel.

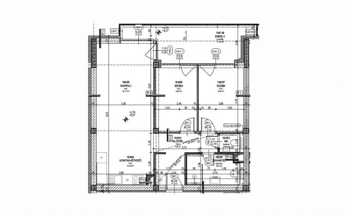
A társasház 1. emeletén eladó egy Ny-i tájolású, 63 nm-es, nappali + 2 hálószobás lakás 13 nm-es erkéllyel.  

A lakások mellé megvásárolható parkolók és tárolók a ház déli oldalán kerülnek elhelyezésre.

A lakóház az alapjaitól új építésű ingatlannak számít (mely kifejezetten jó hír CSOK-os vásárlás esetén). A lakások belső műszaki felszereltsége megfelel a mai követelményeknek és kényelmi elvárásoknak. A hőszivattyús hűtő-fűtő berendezés egy már jól bevált, energetikailag kifejezetten modern megoldás, mely télen és nyáron is kellemes hőérzetet biztosít és akár távolról is vezérelhető. A melegvíz ellátás lakásonként villanybojler segítségével történik. Az épületben két lift gondoskodik a lakások kényelmes megközelíthetőségéről.

Mindenképpen vonzerőnek számít az a zárt terület, mely kizárólag ehhez és a következő 71 lakásos házhoz tartozik. Itt kerül elhelyezésre az a kültéri medence és napozóterasz, mely a telek strandhoz közeli felére tervezett.

A Balaton partján építhető ingatlanok száma véges és az elmúlt időszak tanúsága alapján hatalmas az igény egy ilyen kivételes lehetőségre – legyen a cél családi kikapcsolódás vagy befektetés.

Az értékesítés első hetében több, mint 20% elkelt. Ne maradjon le!

Referencia szám: PR012627/F/22

 

Projekt
Ingatlan kereső
Hívjon, vagy küldjön üzenetet!