Menü

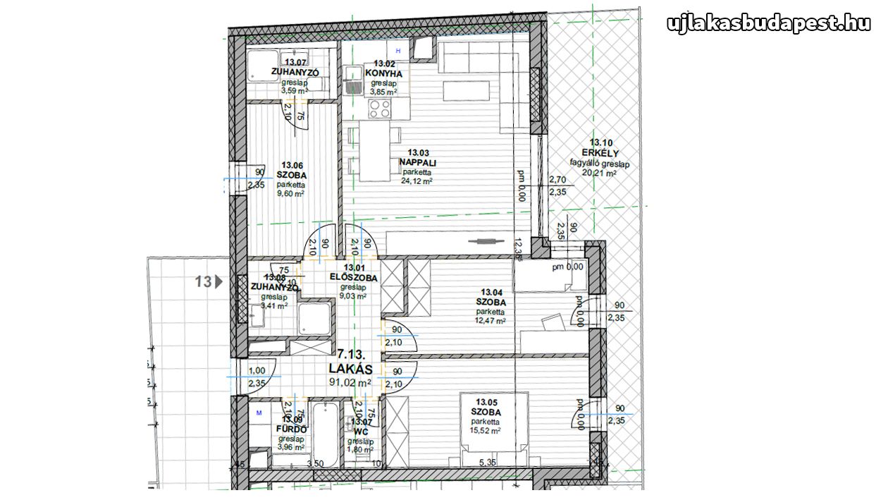
Eladó 91 nm-es lakás 20 nm erkéllyel a XI.kerület frekventált részén 7.13

Ár: ELADVA
Referencia szám: LS001881
ingatlan típusa: Lakás
helyszín: Budapest XI.ker.
emelet: 7. emelet
szobák: 3 + 1 szoba
átadás éve: 2021.12.31
alap terület: 91.02 m²
erkély mérete: 20.21 m²
valós terület: 101.13 m²
fűtés típusa: Házközponti egyedi méréssel
CSOK-ra alkalmas-e: nem
Új építésű ingatlan leírás

Eladó egy 91 nm-es, nappali + 3 szobás, 3 fürdőszobás lakás 19 nm-es erkéllyel, mely 3 helyiségből is megközelíthető.

Kelenföld dinamikusan fejlődő, folyamatosan felértékelődő részén épülő 160 lakásos beruházás. A közlekedés rendkívül kedvező, forgalmas busz- és villamosvonalak, valamint a 4-es metró is könnyedén elérhető a projekt közelében.

A 160 lakás 2 külön ütemben kerül megvalósításra. A változatos lakástípusok igyekeznek az eltérő vevői igényeknek eleget tenni. A lakások 34 és 119 m2 alapterület között mozognak, a garzonoktól kezdve a 4 szobás lakástípusokig. A kialakítás két különálló lépcsőházra bontja a lakóparkot, az emeletekre való kényelmes feljutást 2 lift fogja biztosítani.

Alagsori és földszinti gépkocsi-beállók, valamint tárolók külön megvásárolhatóak. Fizetési ütemezés tekintetében a beruházó rugalmas, több konstrukció is elérhető, amely a lakás vételi árát is befolyásolhatja. A műszaki átadás 2021 IV. negyedévében történik meg

Ha szeretne többet megtudni a műszaki tartalomról és a fizetési feltételekről, keressen minket e-mailben vagy telefonon!

Referencia szám: LK490665

Ingatlan kereső